|
|
|
[N-4-3]西中子縄4区画-gB
田村市船引町船引字西中子縄60番の一部
国道288号バイパスの近く、平坦地です。
|
特定建築条件付き農地転用申請による土地の販売です。
お引き渡しには確認申請の取得が条件となります。
建築会社の指定はありません。ご希望の会社でどうぞ。
価格を抑えたい方は大手建築会社の注文住宅をご案内いたします。ご相談下さい。
参考資料として、平屋のプランを作ってみました。
南側の区画は平屋です。日当たりは確保で来そうです。
まもなく造成完了です。
物件のイメージ
|
-
 国道288号線近く、平坦地。
-
 都市計画図
-
 分筆計画図
-
 造成工事計画図
-
 敷地と道路の関係資料
-
 航空写真
-
 物件資料
-
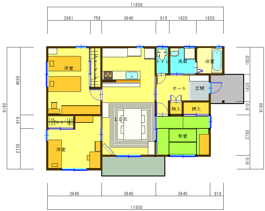
 参考資料 25坪の平屋です。
-
 参考プランは25坪、3LDKの平屋です。
|
物件情報の詳細
|
|
用途地域 |
無指定 |
価格 |
8,275,000円 |
|
地目 |
現在は「田」、農地転用後に造成実施「宅地」 |
共用施設負担金 |
|
|
敷地/私道負担 |
248.71u(75.23坪)/ |
販売区画 |
1 |
|
現状 |
更地(建物無) |
都市計画法 |
都市計画区域 |
|
坪単価 |
約10.99万円 |
建蔽率/容積率 |
60%/200% |
|
交通手段 |
船引駅、徒歩6分 |
完成(予定)日 |
2026年2月(築1年未満) |
|
権利形態 |
所有権 |
国土法 |
|
|
引渡し日 |
相談 |
取引形態 |
売主 |
|
設備等
|
|
|
その他
|
分水負担金35万円が必要になります。 敷地面積は宅地の面積。通路敷地は共有地となります。
|
|
情報登録日
|
2026年03月06日
|
次回更新予定
|
随時
|
地図
|
|
|
全0件
もっと詳しく知りたい(0)
少し興味がある(0)
興味が無い(0)
|
|
|
|