TOP 物件検索 新着物件 お勧め物件 個人情報 会社概要 お問合せ 会員メニュー
賃貸物件
おすすめ物件 19件
アパート 19件
売買物件
おすすめ物件 3件
土地 7件
お問合せリスト
返済シュミレーション
キーワード検索

物件詳細情報

rent アパート [sya-mezon201]シャーメゾンかたそね201  田村市船引町船引字入山73-1 新築 おすすめ物件  2025年12月完成予定
ListMark  物件のイメージ
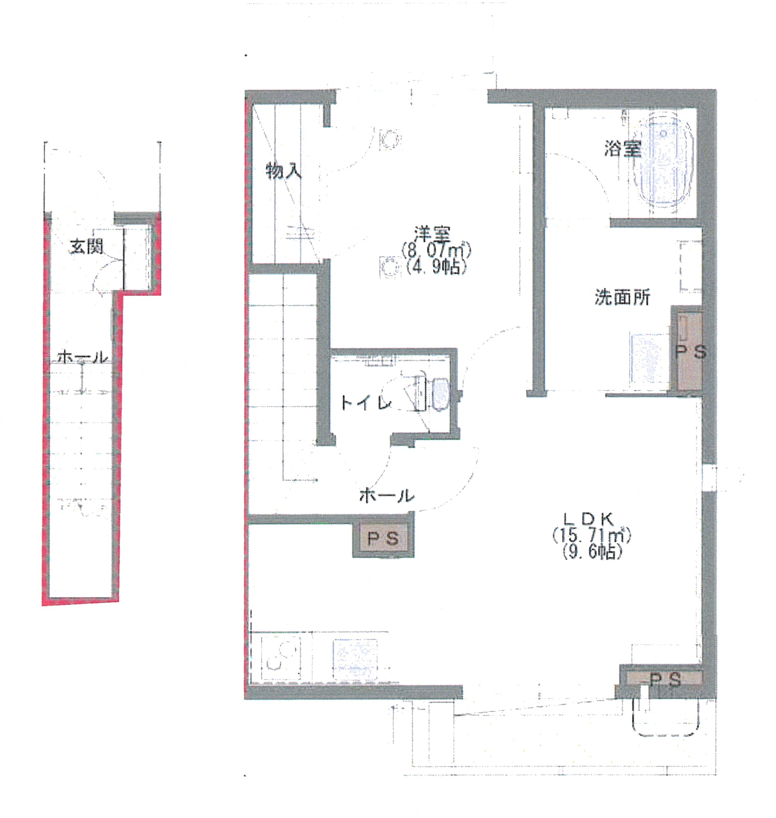
  • 間取り
    間取り
ListMark  物件情報の詳細
間取 1LDK 賃料 63,000円
間取詳細 LDK9.6帖、洋間4.9帖 管理費/保険 込み/借家人賠償保険加入条件有
専有/バルコニー 44.58u/− 敷金/礼金 2ヶ月/1ヶ月
所在階/建物階 2階/2階建 建物構造 軽量鉄骨造
駐車場 1台/賃料込み 建物:延べ面積 −:−
交通手段 - 築年月/完成予定 2025年12月
引渡し日 相談 取引形態 仲介
設備等
水道水道 電気電気 ガス(プロパン)	ガス(プロパン) 下水道下水道
宅配BOX宅配BOX インターホンインターホン エアコンエアコン 給湯給湯
IHクッキングIHクッキング シャワーシャワー 追焚追焚 バス・トイレ別バス・トイレ別
ウォシュレットウォシュレット ホット便座ホット便座 シャンプードレッサーシャンプードレッサー 洗面台洗面台
室内洗濯機置場室内洗濯機置場 ペアガラスペアガラス バルコニーバルコニー 火災報知器火災報知器
駐車場駐車場
その他 ※2025年12月完成予定、入居日相談。
※駐車場1台、共益費は家賃に含みます。(駐車場2台目3,300円)
※更新事務手数料10,000円+消費税(2年毎)
情報登録日 2025年12月04日 次回更新予定 随時
ListMark  地図

 
Print印刷 Questお問い合わせ Mylistマイリストに追加 BACKBACK
コメント 全0件  もっと詳しく知りたい(0) 少し興味がある(0) 興味が無い(0)
お名前(ハンドル): パスワード:

投稿には免責事項の同意が必要です。
必ず免責事項 をお読み下さい。
免責事項に 同意する。 同意しない。

田村・三春地域の不動産情報 株式会社アップポイント
〒963-4312 福島県田村市船引町船引字扇田231-1 TEL0247-81-1571

不動産CGI©CopyRight Chama.ne.jp